Nissan ARIYA 2025 Instruksjonsbok
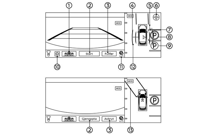
9.33. ProPILOT Park-skjerm

Ikon for valg av parkeringsmetode:
Viser parkeringsmetoden som er valgt for øyeblikket. Trykk for å endre parkeringsmetoden. Se
.[Start]/[Gjenoppta]:
Trykk på denne tasten for å starte ProPILOT Park-kontroll.
[Fullfør]/[Avbryt]:
Trykk på denne tasten for å deaktivere ProPILOT Park.
Ikon for oppdaging av parkeringsplass:
Angir hvilken side av parkeringsplassen som oppdages under parkeringsplass-søk.
: En parkeringsplass oppdages på høyre side.
: En parkeringsplass oppdages på venstre side.Klaringslinjer (røde):
Viser det omtrentlige området som bilen vil passere gjennom når parkeringskontroll er aktiv.
Ikon for justering av parkeringsveiledningsboks (
):Trykk på denne tasten for å justere plasseringen til parkeringsveiledningsboksen. Se
.Parkeringsguideboks (grønn):
Viser omtrentlig hvor bilen vil bli parkert. Boksen blir lyseblå når parkeringskontrollen er aktiv.
(P) tegn (blå):
Angir posisjonen der bilen vil bli parkert.
(P) tegn (fargeløs):
Angir en alternativ parkeringsposisjon, som kan velges i stedet for den valgte parkeringsposisjonen. Når ikonet berøres, endres det til blått.
Innstillinger-ikonet (
):Trykk på dette ikonet for å endre Innstillingene for ProPILOT Park.
Ikon for ProPILOT Park-kontroll (
):Status for ProPILOT Park-kontroll angis med farger.
Grønn: Parkeringskontrollen er aktiv.
Grå: Parkeringskontrollen er ikke aktiv.
Retningslinjer for søkeområde for parkeringsplasser (lyseblå):
Angir at systemet søker etter en parkeringsposisjon. Linjene er også brukt som en guide for kjøretøyposisjonering under plassøk. Se
.Rektangel for endring av retningsposisjon (grønn):
Angir posisjonen for å gjøre neste skiftendring.
Når vindusviskerne er i drift eller når vann eller andre stoffer på kameralinsen oppdages, vises
skiltet. Når ${1} skiltet vises, er de påvisbare parkeringsposisjonene begrenset.